VENTA PASEO DE LA CASTELLANA 175
- 1.360.000€
Descripción
Ahora tienes la oportunidad de diseñar tu casa A MEDIDA en pleno Paseo de la Castellana, a escasos metros del corazón financiero de la capital.
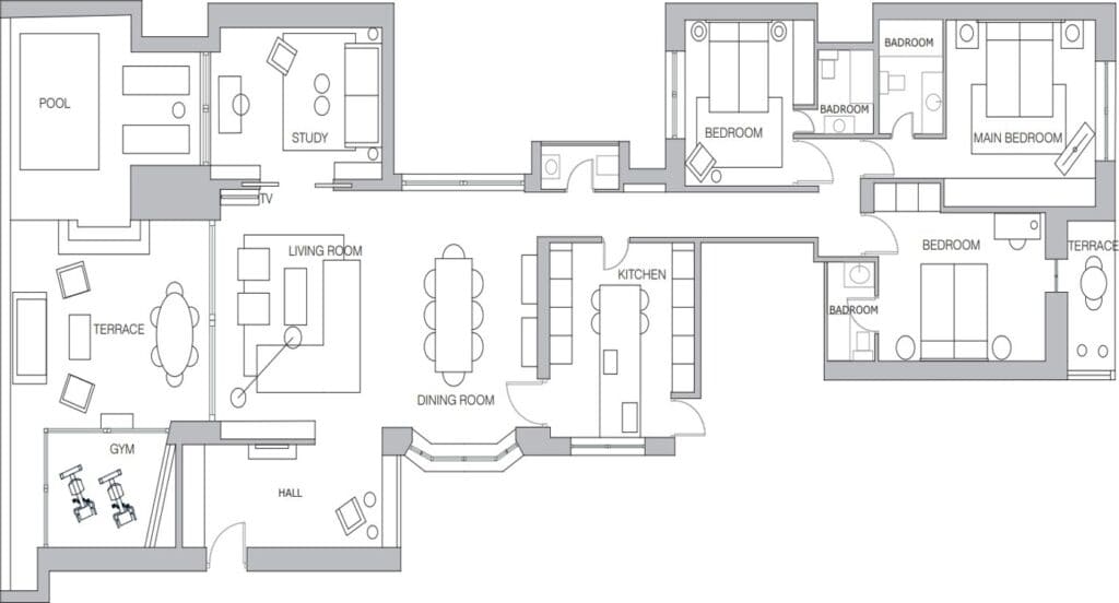
En un edificio muy representativo, y situada en una segunda planta, esta vivienda ha estado siendo utilizada como oficina, por lo qué, sus espacios diáfanos ofrecen múltiples posibilidades de distribución, además de contar con dos accesos independientes.
Sus 250 m² hacen que se puedan crear espacios amplios y versátiles.
La calefacción es centralizada y los cerramientos de rotura de puente térmico, con lo que el aislamiento es total, tanto acústico como térmico y las persianas motorizadas.
¡La ubicación es perfecta y hace que no necesites utilizar el coche en ningún momento!
La cercanía a la Plaza de Castilla lo convierte en un lugar estratégico, tanto a nivel de ocio, tiendas y gastronómico, como de transporte, ya que Plaza de Castilla es un importante centro de comunicaciones con líneas de metro, autobuses urbanos e interurbanos que conectan con toda la ciudad además la renovada estación de tren de Chamartín se encentra a escasos 5 minutos y tiene acceso directo a M-30, A-1 M-11 principales vías de salida/entrada de la ciudad y 10 minutos al aeropuerto.
¡Si estás buscando un hogar para vivir de acuerdo a tus necesidades, ya lo has encontrado!
¡No dudes en contactar con nosotros para concertar una visita!
En Polo Consulting estaremos encantados de ayudarte.

Detalles
Características
Detalles adicionales
-
Calefacción centralizada: Si
-
Cerca de : Plaza de Castilla
Dirección
-
Dirección: Paseo de la Castellana, Madrid
-
Ciudad: Madrid
-
Código postal: 28046
-
País: España

















